+38 (067) 288 88 08
Замовити дзвінок
Обрати квартиру
Меню
Про ЖК
Розташування
Переваги
Планування
Новини та акції
Хід будівництва
Документи
Галерея
Контакти
Головна
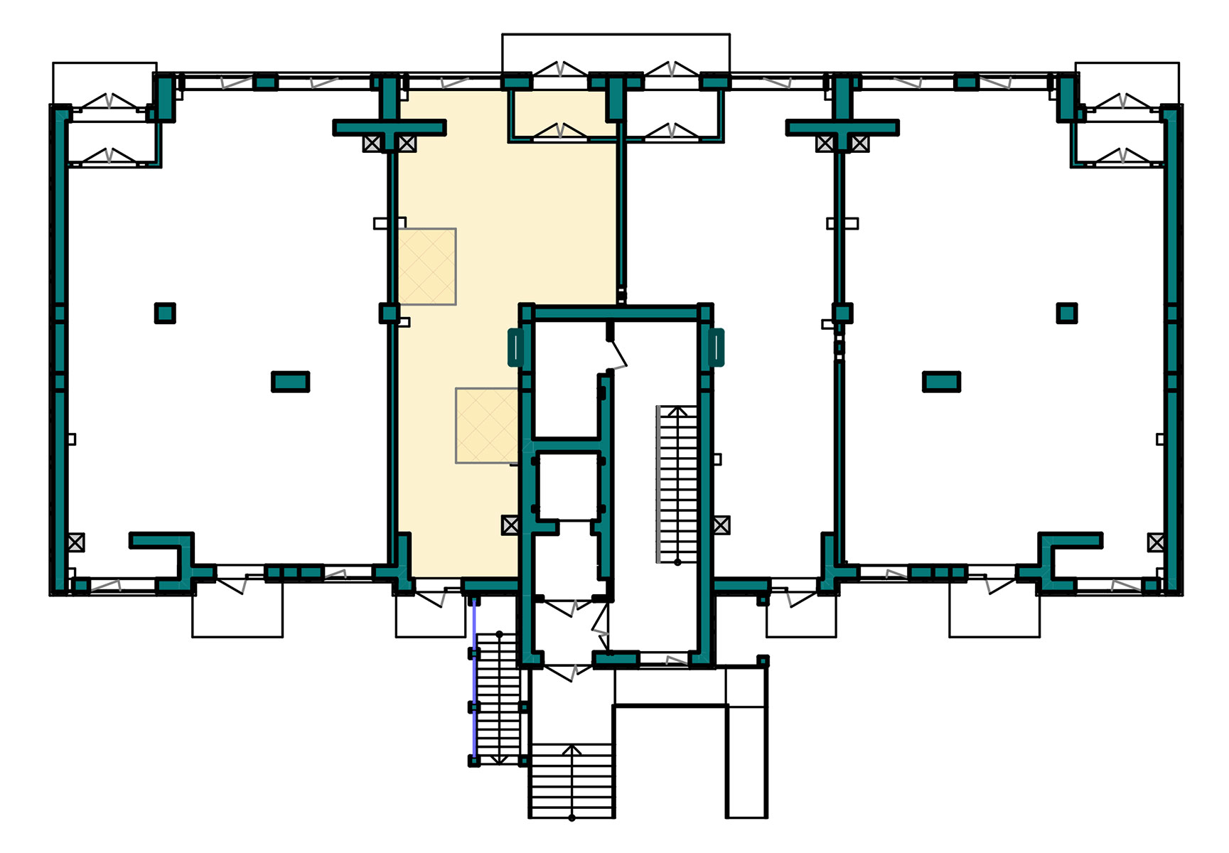
Планування Будинок №3
Нежитлове приміщення 64,3 м²
Нежитлове приміщення 64,3 м²
Будинок 3
Секція П2
Поверх 1
Експлікація приміщень:
1. Комерційне приміщення
60,5 м²
2. Тамбур
3,8 м²
номер
№4
площа, м2
64,3 м²
будинок
№3
секція
П2
поверх
1
стан
без ремонту
Нежитлове приміщення 64,3 м²
Будинок 3
Секція П2
Поверх 1
дізнатися ціну
номер
№4
площа, м2
64,3 м²
будинок
№3
секція
П2
поверх
1
стан
без ремонту
Для детальнішої інформації
телефонуйте за номером:
(067) 288-88-08