+38 (067) 288 88 08
Замовити дзвінок
Обрати квартиру
Меню
Про ЖК
Розташування
Переваги
Планування
Новини та акції
Хід будівництва
Документи
Галерея
Контакти
Головна
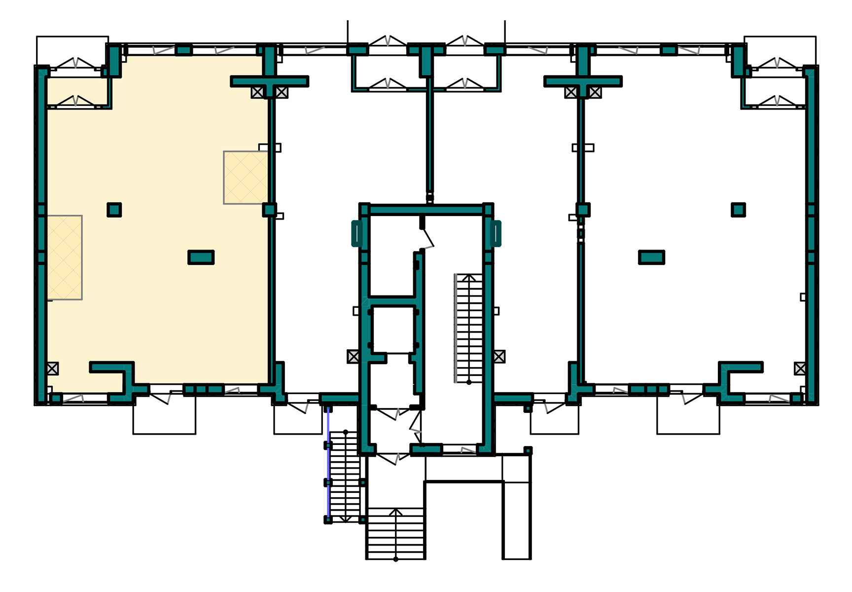
Планування Будинок №2
Нежитлове приміщення 120,3 м²
Нежитлове приміщення 120,3 м²
Будинок 2
Секція С2
Поверх 1
Схема
План поверху
На плані ЖК
Експлікація приміщень:
1. Комерційне приміщення
116,86 м²
2. Тамбур
3,41 м²
номер
№1
площа, м2
120,3 м²
будинок
№2
секція
С2
поверх
1 поверх
стан
без ремонту
Нежитлове приміщення 120,3 м²
Будинок 2
Секція С2
Поверх 1
дізнатися ціну
номер
№1
площа, м2
120,3 м²
будинок
№2
секція
С2
поверх
1 поверх
стан
без ремонту
Для детальнішої інформації
телефонуйте за номером:
(067) 288-88-08