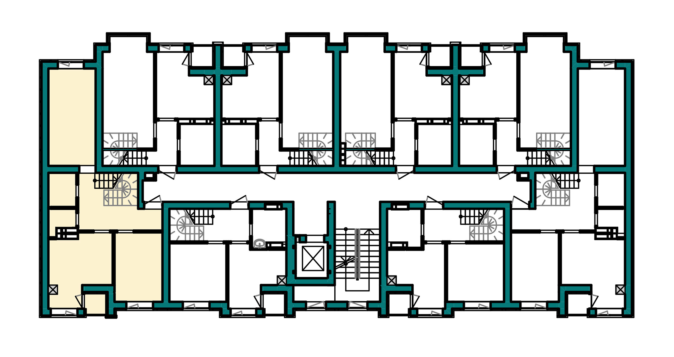
Експлікація приміщень:
1. Хол
11,79 м²
2. Кухня
11,53 м²
3. Житлова кімната
9,83 м²
4. Житлова кімната
13,62 м²
5. Санвузол
1,63 м²
6. Ванна
2,76 м²
7. Лоджія
0,65 м²
8. Хол
3,92 м²
9. Житлова кімната
16,02 м²
10. Житлова кімната
9,69 м²
11. Житлова кімната
13,62 м²
12. Сан.вузол
4,60 м²
13. Лоджія
0,65 м²
номер
№34
площа, м2
100,31 м²
кількість кімнат
5 кімнат
будинок
№2
секція
С2
поверх
6-7 поверх
стан
без ремонту