+38 (067) 288 88 08 Замовити дзвінок Обрати квартиру
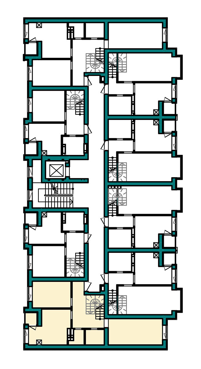
5-кімнатна квартира 100,4 м²
Будинок 3 Секція П4 Поверх 6-7
Експлікація приміщень:
1. Хол 11,8 м²
2. Кухня 11,5 м²
3. Житлова кімната 9,8 м²
4. Житлова кімната 13,6 м²
5. Сан.вузол 1,7 м²
6. Сан.вузол 2,8 м²
7. Лоджія 0,7 м²
8. Хол 3,9 м²
9. Житлова кімната 16,0 м²
10. Житлова кімната 9,7 м²
11. Житлова кімната 13,6 м²
12. Сан.вузол 4,6 м²
13. Лоджія 0,7 м²
номер №129
площа, м2 100,4 м²
кількість кімнат 5 кімнат
будинок №3
секція П4
поверх 6-7 поверх
стан без ремонту

5-кімнатна квартира 100,4 м²

Будинок 3 Секція П4 Поверх 6-7
дізнатися ціну
номер №129
площа, м2 100,4 м²
кількість кімнат 5 кімнат
будинок №3
секція П4
поверх 6-7 поверх
стан без ремонту

Для детальнішої інформації
телефонуйте за номером:

(067) 288-88-08