+38 (067) 288 88 08 Замовити дзвінок Обрати квартиру
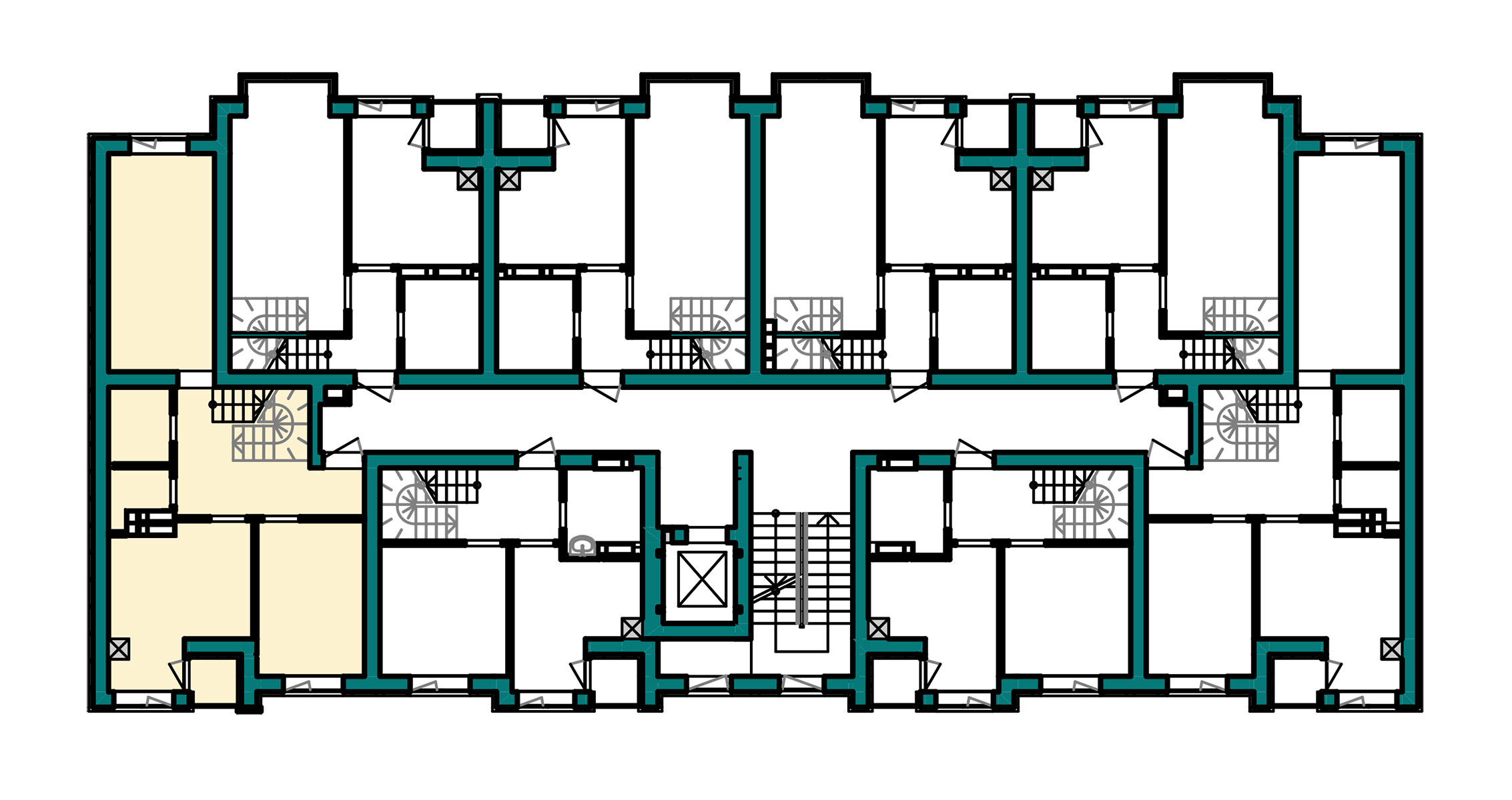
5-кімнатна квартира 100,4 м²
Будинок 3 Секція П2 Поверх 6-7
Експлікація приміщень:
1. Хол 11,8
2. Кухня 11,5
3. Житлова кімната 9,8
4. Житлова кімната 13,6
5. Санвузол 1,7
6. Ванна 2,8
7. Лоджія 0,7
8. Хол 3,9
9. Житлова кімната 16,0
10. Житлова кімната 9,7
11. Житлова кімната 13,6
12. Сан.вузол 4,6
13. Лоджія 0,7
номер №54
площа, м2 100,4 м²
кількість кімнат 5 кімнат
будинок №3
секція П2
поверх 6-7 поверх
стан без ремонту

5-кімнатна квартира 100,4 м²

Будинок 3 Секція П2 Поверх 6-7
дізнатися ціну
номер №54
площа, м2 100,4 м²
кількість кімнат 5 кімнат
будинок №3
секція П2
поверх 6-7 поверх
стан без ремонту

Для детальнішої інформації
телефонуйте за номером:

(067) 288-88-08