+38 (067) 288 88 08 Замовити дзвінок Обрати квартиру
3-кімнатна квартира 84,0 м²
Будинок 1 Секція С6 Поверх 3-5
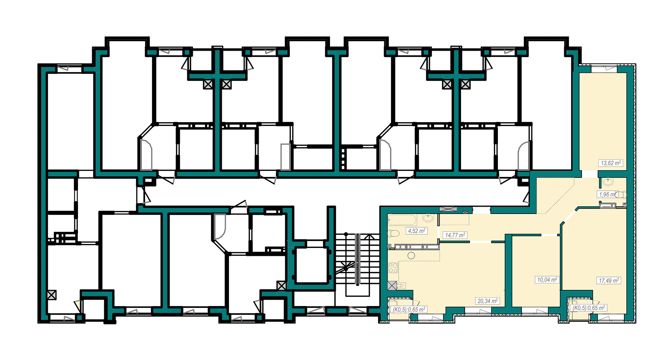
Експлікація приміщень:
1. Хол 14,77 м²
2. Житлова кімната 17,49 м²
3. Житлова кімната 10,04 м²
4. Кухня-вітальня 20,34 м²
5. Сан.вузол 4,52 м²
6. Житлова кімната 13,62 м²
7. Сан.вузол 1,96 м²
8. Лоджія 0,65 м²
9. Лоджія 0,65 м²
номер №38
площа, м2 84,0 м²
кількість кімнат 3 кімнати
будинок №1
секція С6
поверх 3-5 поверх
стан без ремонту

3-кімнатна квартира 84,0 м²

Будинок 1 Секція С6 Поверх 3-5
дізнатися ціну
номер №38
площа, м2 84,0 м²
кількість кімнат 3 кімнати
будинок №1
секція С6
поверх 3-5 поверх
стан без ремонту

Для детальнішої інформації
телефонуйте за номером:

(067) 288-88-08