+38 (067) 288 88 08 Замовити дзвінок Обрати квартиру
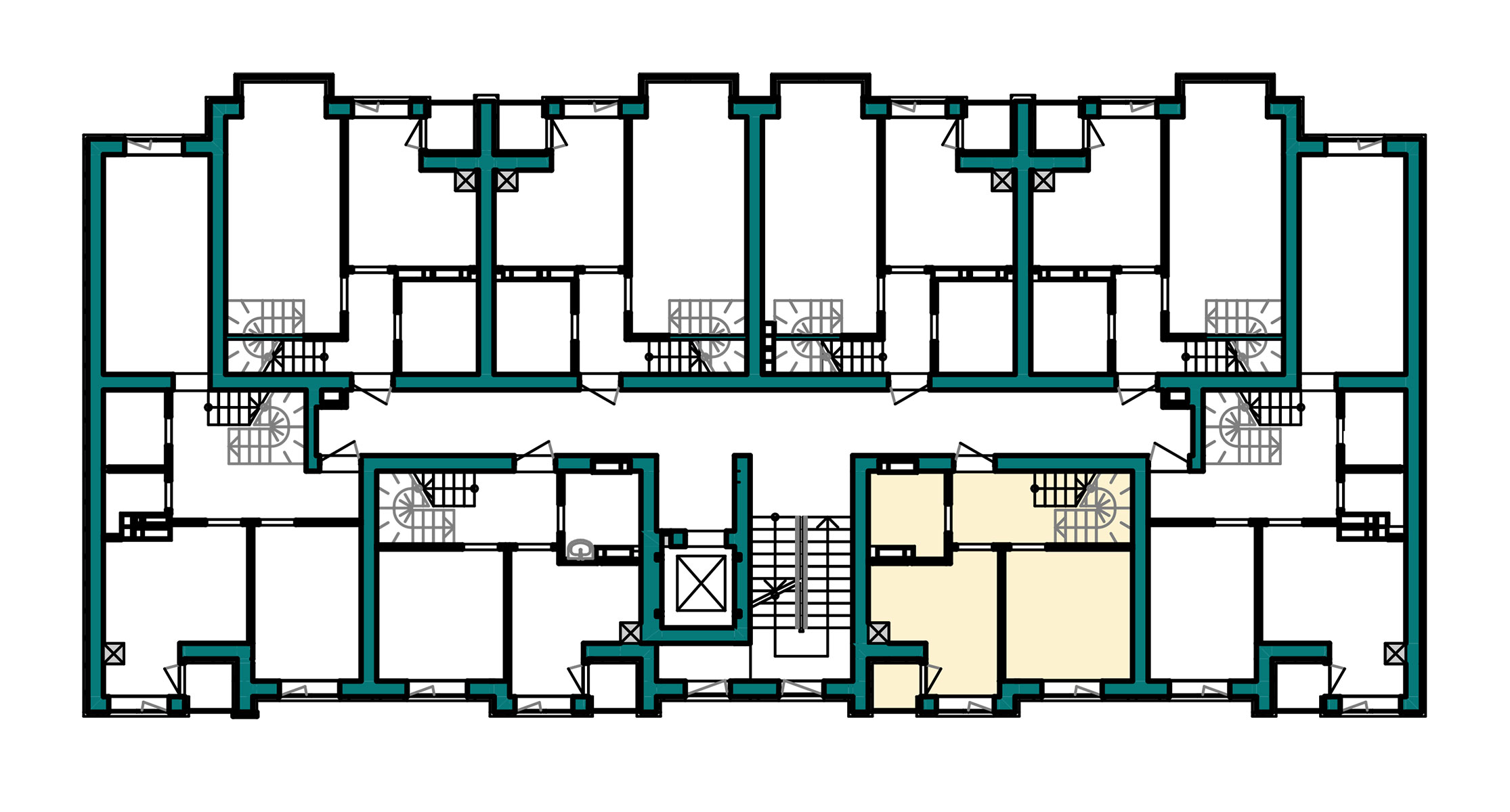
2-кімнатна квартира 61,29 м²
Будинок 2 Секція С2 Поверх 6-7
Експлікація приміщень:
1. Хол 7,74 м²
2. Кухня 8,50 м²
3. Житлова кімната 9,86 м²
4. Сан.вузол 3,55 м²
5. Лоджія 0,65 м²
6. Хол 4,44 м²
7. Житлова кімната 16,33 м²
8. Сан.вузол 3,55 м²
9. Гардероб 2,18 м²
10. Гардероб 3,84 м²
11. Лоджія 0,65 м²
номер №40
площа, м2 61,29 м²
кількість кімнат 2 кімнати
будинок №2
секція С2
поверх 6-7 поверх
стан без ремонту

2-кімнатна квартира 61,29 м²

Будинок 2 Секція С2 Поверх 6-7
дізнатися ціну
номер №40
площа, м2 61,29 м²
кількість кімнат 2 кімнати
будинок №2
секція С2
поверх 6-7 поверх
стан без ремонту

Для детальнішої інформації
телефонуйте за номером:

(067) 288-88-08