+38 (067) 288 88 08 Замовити дзвінок Обрати квартиру
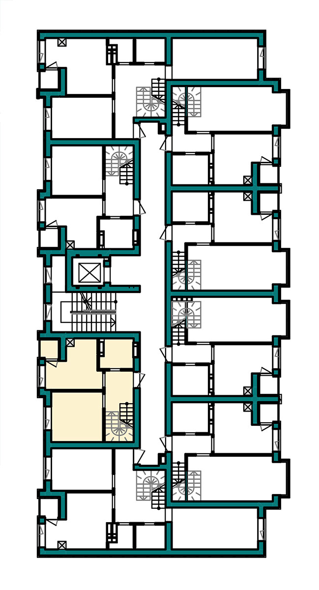
2-кімнатна квартира 61,5 м²
Будинок 3 Секція П4 Поверх 6-7
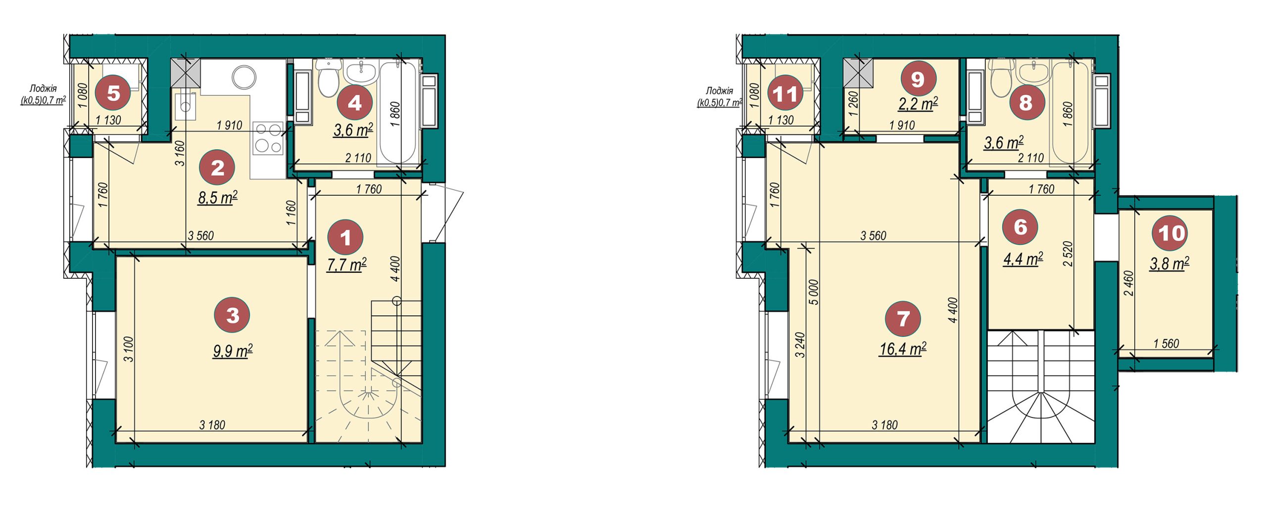
Експлікація приміщень:
1. Хол 7,7 м²
2. Кухня 8,5 м²
3. Житлова кімната 9,9 м²
4. Кухня 3,6 м²
5. Лоджія 0,7 м²
6. Хол 4,4 м²
7. Житлова кімната 16,4 м²
8. Сан.вузол 3,6 м²
9. Гардероб 2,2 м²
10. Гардероб 3,8 м²
11. Лоджія 0,7 м²
номер №130
площа, м2 61,5 м²
кількість кімнат 2 кімнати
будинок №3
секція П4
поверх 6-7 поверх
стан без ремонту

2-кімнатна квартира 61,5 м²

Будинок 3 Секція П4 Поверх 6-7
дізнатися ціну
номер №130
площа, м2 61,5 м²
кількість кімнат 2 кімнати
будинок №3
секція П4
поверх 6-7 поверх
стан без ремонту

Для детальнішої інформації
телефонуйте за номером:

(067) 288-88-08