+38 (067) 288 88 08 Замовити дзвінок Обрати квартиру
2-кімнатна квартира 51,9 м²
Будинок 3 Секція П4 Поверх 2-5
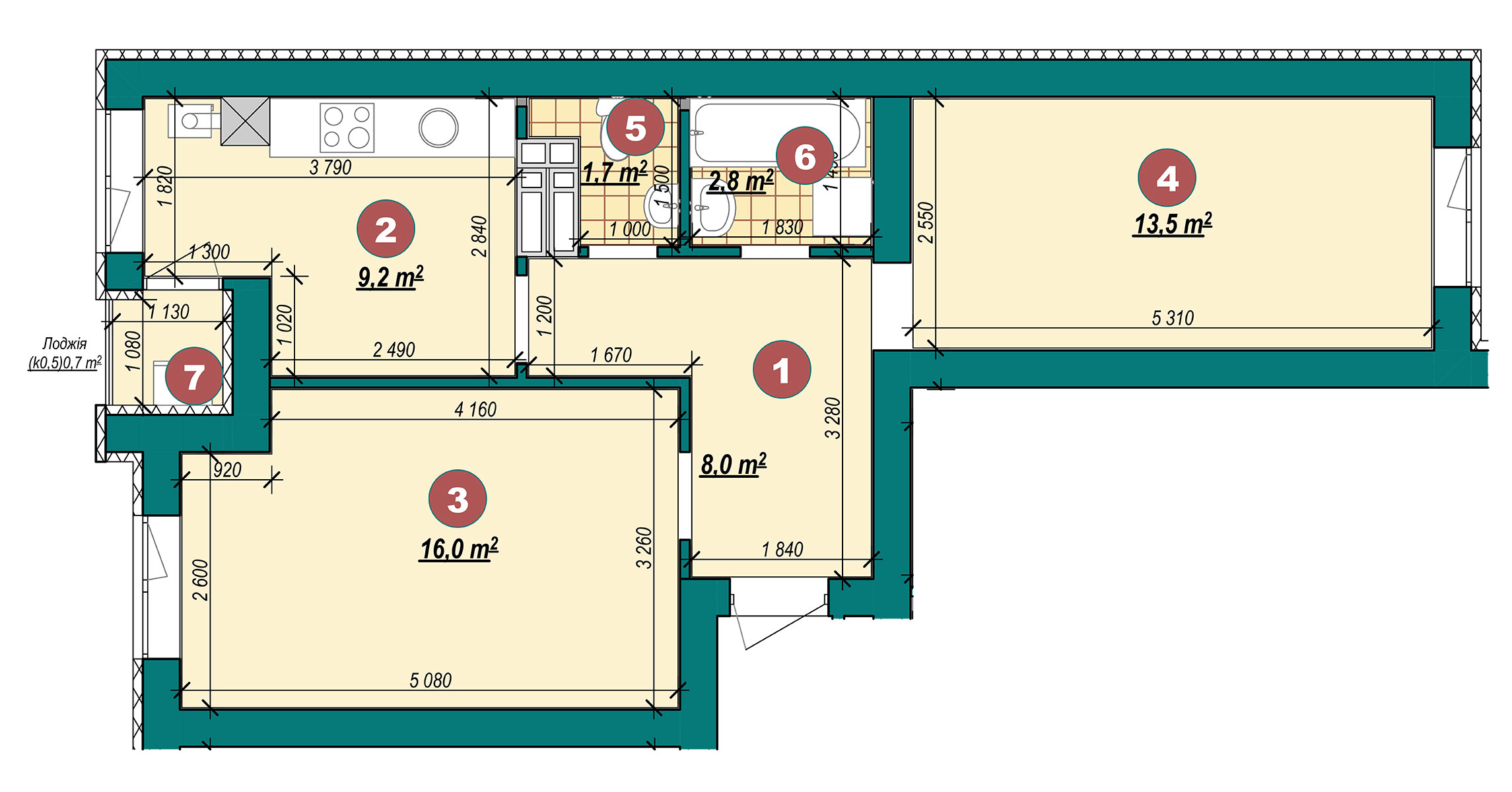
Експлікація приміщень:
1. Хол 8,0 м²
2. Кухня 9,2 м²
3. Житлова кімната 16,0 м²
4. Житлова кімната 13,5 м²
5. Сан.вузол 1,7 м²
6. Сан.вузол 2,8 м²
7. Лоджія 0,7 м²
номер № 92, 100, 108, 116
площа, м2 51,9 м²
кількість кімнат 2 кімнати
будинок №3
секція П4
поверх 2-5 поверх
стан без ремонту

2-кімнатна квартира 51,9 м²

Будинок 3 Секція П4 Поверх 2-5
дізнатися ціну
номер № 92, 100, 108, 116
площа, м2 51,9 м²
кількість кімнат 2 кімнати
будинок №3
секція П4
поверх 2-5 поверх
стан без ремонту

Для детальнішої інформації
телефонуйте за номером:

(067) 288-88-08