+38 (067) 288 88 08
Замовити дзвінок
Обрати квартиру
Меню
Про ЖК
Розташування
Переваги
Планування
Новини та акції
Хід будівництва
Документи
Галерея
Контакти
Головна
Планування Будинок №2
1-кімнатна квартира 36,4 м²
1-кімнатна квартира 36,4 м²
Будинок 2
Секція С2
Поверх 3-5
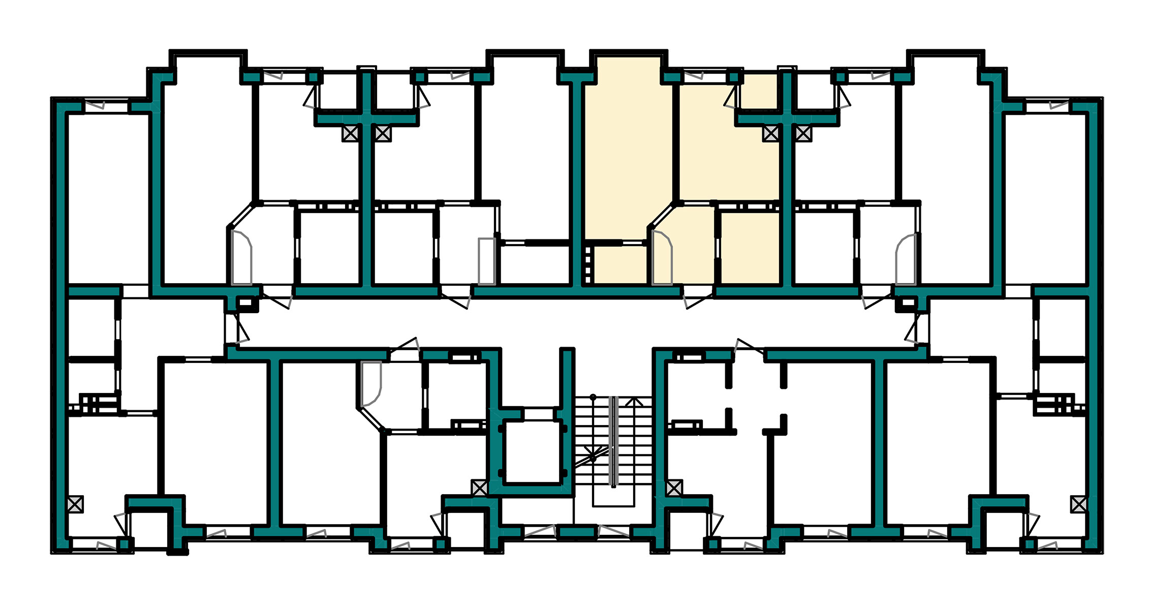
Схема
План поверху
На плані ЖК
Експлікація приміщень:
1. Хол
4,56 м²
2. Кухня
9,50 м²
3. Житлова кімната
17,46 м²
4. Сан.вузол
4,25 м²
5. Лоджія
0,65 м²
номер
№ 27
площа, м2
36,4 м²
кількість кімнат
1 кімната
будинок
№2
секція
С2
поверх
3-5 поверх
стан
без ремонту
1-кімнатна квартира 36,4 м²
Будинок 2
Секція С2
Поверх 3-5
дізнатися ціну
номер
№ 27
площа, м2
36,4 м²
кількість кімнат
1 кімната
будинок
№2
секція
С2
поверх
3-5 поверх
стан
без ремонту
Для детальнішої інформації
телефонуйте за номером:
(067) 288-88-08